Avail 15% off on First assignment order NAH_FIRST_15%

Logo
University Unitec Institute of Technology (Unitec)
Subject CONS5005TP Construction 1 Residential

CONS5005TP Assessment Two: FloorFraming & Foundations

Weighting: 30%

Pass Threshold: 40%

Learning Outcomes covered by this assessment:

LOI Identify geotechnical factors and substructures for a small building.

L02 Evaluate building types and structures for a small building. L04 Create technical sl<etches for a small building project.

Scenario 

You have been provided with a set of design drawings for a small house by your boss, who owns a small construction company. You are required to analyse the floor, wall and roof loads, and complete calculations and specify structural member and fixings for a suspended timber subfloor on pile foundations.

Requirements

Using NZS 3604, specify the most economical sizes and spacings for each of the required members. Include component sizes, spacings and material grades. Where necessary, calculate loaded dimensions to allow you to specify framing sizes. Where a timber design size is not widely available use nominated sizes instead.

Include information about any fixings required by NZS 3604, including spacings if applicable. Use NZS 3604 and B2/AS1 to specify durability treatments for all components.

Content (20 marks)

Your design should include the following components:

  • The site location is in a Medium wind zone, and Exposure Zone C.
  • Timber piles and concrete footings for ordinary piles only. Footings should be sized in conjunction with Auckland Council’s practice notc AC2208.
  • Subfloor bracing fixing details.
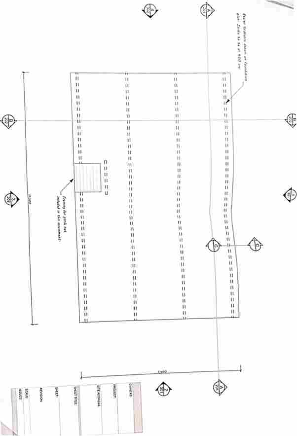
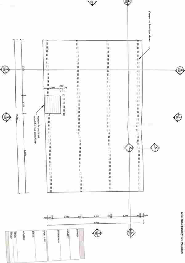
  • You do not have to specify subfloor bracing set-out for this assessment. Specify bearers for the locations shown in the design drawings. Thc design for the subfloor has 4 lines of bearers, with a maximum span of 1.65m. Thcsc cannot be
  • Specify all floor joists, including doubled and boundary joists.
  • Joists must be spaced at 450mm centres.
  • Solid blocl<ing shall bc specified for joist mid-spans and lines of subfloor support, where required.
  • Plywood sheet flooring, as specified by NZS 3604. Include locations for wct area flooring, with durability requirements.

Presentation (10 marks):

Present your design using neat hand sketches. Sketches should be drawn to scale on the provided templates. Note all construction specifications on the relevant sl<etches. Notes should include material, size, grade, and spacing (as applicable). Include information about any required fixings. Construction elements should be dimensioned as appropriate. Notes and dimensions should be clear and legible. All sheets should have a simple title and sheet number.

The following drawings should be provided:

  • Foundation plan (1:50)
  • Floor framing plan (1:50)
  • Cross-section showing foundations, subfloor, floor framing (1:50)
  • Ordinary pile footing detail (1:10) – D-01
  • Bearer overhang detail (1:10) – D-02
  • Braced pile fixing detail (1:10) – D-03

Additional Notes:

Note 1: This is a summative assessment. All summative assessments in this qualification are compulsory, unless expressly stated otherwise. If you do not submit this assessment, then you will receive a Did Not Complete (DNC) grade for the entire course.

Note 2: For information about late submission penalties, extension and assessment concession (ACS) applications, resubmissions, and how to raise concerns or complaints about academic decisions, see the Assessment section of the course Moodle page.

Submission

  • Assignment is due Friday 17 th April at 5.00pm.
  • Submit your sketches in a single pdf file to the assignment portal on the course Moodle page. You will receive an automated notice advising you of your successful submission. Emailed assessments will not be accepted.
  • File naming conventions: Include your name, student ID, course name and code, and the assessment name / number in the file name of your submission.
  • By submitting your assignment, you confirm that it is your own, original work.

CONS5005TP Assessment Two Marking Rubric

Please see the attached marking rubric for the criteria each sheet will be assessed on.

Breakout Activity — Week 05 — Timber Foundations and Subfloor Design

Using the calculation sheet below, calculate the subfloor framing and foundations for the practice example on Moodle. You will need to refer to the practice example plans, NZS 3604, and the Subfloor & Foundation Design Flowchart. This activity does not contribute to your final mark, but will help your understanding of the course.

Loaded dimension: Focusin on the central bearer onl
Loaded Dimension: Span 1 + Span 2 2
Spans:

Note: The span ofthe joists is measured between the bearers

Span 1= Span 2 =
Add the spans to the formula:
Central bearer loaded dimension answer:  

CONS5005TP Construction 1 Residential Assessment 2, 2026 | Unitec CONS5005TP Construction 1 Residential Assessment 2, 2026 | Unitec CONS5005TP Construction 1 Residential Assessment 2, 2026 | Unitec CONS5005TP Construction 1 Residential Assessment 2, 2026 | Unitec CONS5005TP Construction 1 Residential Assessment 2, 2026 | Unitec

Order Your CONS5005TP Construction 1 Residential Assessment 2 Answer

Hire NZ Native Experts 24/7.

Get Help By Expert

Stuck with your CONS5005TP Construction 1 Residential Assessment and not sure how to handle floor framing, pile foundations, or NZS 3604 calculations? Many students struggle with load analysis, correct member sizing, and preparing proper technical sketches as per Unitec requirements. If you’re unsure where to start or worried about making mistakes, you can rely on NZ Assignment Help for accurate engineering assignment help. You can also review our unitec assignment examples to understand expected standards. Get stress-free support with our write my assignment and complete your assessment with confidence.

Answer

UP TO 15 % DISCOUNT

Get Your Assignment Completed At Lower Prices

Plagiarism Free Solutions
100% Original Work
24*7 Online Assistance
Native PhD Experts
Hire a Writer Now

Facing Issues with Assignments? Talk to Our Experts Now! Download Our App Now!